שכונת רקפות (מ''ה) |
|||
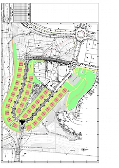
שכונת רקפות ממוקמת בדרום היישוב בין הרחובות צורן ומכבים ובסמוך לביה"ס ניצנים.
עבודות הפיתוח בשלב א' הסתיימו ונמסרו ליזמים 64 יח"ד צמודות קרקע במגרשים דו משפחתיים. גודלו הממוצע של כל מגרש כ-360 מ"ר.
בתכנון השכונה, הושם דגש על איכות הסביבה כחלק אינטגרלי מרמת חיים גבוהה של תושבי השכונה בפרט ותושבי שהם בכלל. כחלק מתכנון ירוק זה, עתידים להתבצע בשכונה מספר פרויקטים ידידותיים לסביבה כגון: הצבת מתקני מחזור, בניית שבילים נוחים להולכי רגל, מסלולי אופניים ייעודיים ושימוש בחומרים טבעיים.
שלב ב' של הפרויקט כולל 48 יח"ד צמודות קרקע ברביעיות. עבודות הפיתוח בעיצומן, ועד כה נמסרו ליזמים 12 יח"ד.
בתכנון השכונה, הושם דגש על איכות הסביבה כחלק אינטגרלי מרמת חיים גבוהה של תושבי השכונה בפרט ותושבי שהם בכלל. כחלק מתכנון ירוק זה, עתידים להתבצע בשכונה מספר פרויקטים ידידותיים לסביבה כגון: הצבת מתקני מחזור, בניית שבילים נוחים להולכי רגל, מסלולי אופניים ייעודיים ושימוש בחומרים טבעיים.
החברה הכלכלית לשהם, אשר אחראית על עבודות הפיתוח בשכונה שהחלו בחודש מאי 2010, הפקידה את ביצוע עבודות אלו בידיה הנאמנות של חברת אחמד חסן תשתיות בע"מ שזכתה במכרז.
|
|||
|
|||
.jpg?BannerID=25)
.jpg?BannerID=26)





