רכיבי נגישות
הדגשת ניווט מקלדת
בחר גודל פונט
איפוס
טקסט
טקסט
בינוני
טקסט
גדול
גופן
קריא
בחר קונטרסט
איפוס
ניגודיות
ניגודיות
עדינה
ניגודיות
גבוהה
שחור
לבן
הדגשת
כותרות
הדגשת
לינקים
הגדלת
עמוד
איפוס הגדרות נגישות
בית
אודות
חדשות
עתונות
צור קשר
אתה נמצא כאן
עמוד הבית
>
עמוד הבית
>
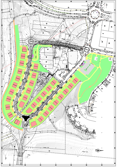
תוכניות
שכונת רקפות
הדפס